
Từ các kiến trúc sư. Các sản phẩm nội thất từ gỗ óc chó được thiết kế vô cùng công phu tại Venice, Califonia - địa điểm nổi tiếng bên bờ biển đặc trưng bởi những căn biệt thự độc đáo. Trong mẫu thiết kế nhà hiện đại dựa trên ý tưởng gỗ góc chó, căn biệt thự là kết quả của sự pha trộn giữa kiến trúc độc đáo giữa con nhân tố con người và thiên nhiên. Thể hiện mối quan hệ chặt chẽ giữa các khối hình vuông vắn của căn biệt thự được kết hợp hài hòa với khối cảnh thiên nhiên bao quanh. Bên cạnh đó là vật liệu kính ấn tượng thay thế cửa gỗ truyền thống đã tạo nên nguồn ánh sáng tự nhiên dồi dào cho căn phòng. Nhưng bên cạnh đó là nhược điểm bởi giới hạn diện tích căn hộ khi lựa chọn có hay không nên tăng diện tích thiết kế căn nhà bằng cách loại bỏ cây thông hoặc để cây thông và giới hạn diện tích nhà.

Với đường kính cây thông gần 5 feet cùng với độ rộng của tán hơn 60 feet, vì vậy với đặc điểm nổi trội này, gia chủ khó lòng loại bỏ vẻ đẹp tự nhiên của loại cây này. Ý tưởng được nảy sinh khi giữ lại phần diện tích của cây bằng cách bổ sung phần phần diện tích ngôi nhà xung quanh vị trí cây, bạn có thể thấy ngay từ bên phải cây, phần tán của cây được trải rộng theo chiều dài ngôi nhà. Các sắp xếp này giúp tăng tối đa từng mét vuông cho ngôi nhà giúp gia chủ có thể sống thoải mái trong căn hộ đồng thời giảm thiểu tối đa nguy cơ tổn hại đến cây. Trong thực tế, kế hoạch bố trí nhà này khá đơn giản nhưng nếu không có ý tưởng độc đáo thì cách thiết kế này lại không có gì khác lạ so với kiến trúc thường. Để khám phá nét độc đáo từ ngoài vào trong, bạn có thể ấn tượng với tính thẩm mỹ, khả năng phối đồ nội thất của gỗ óc chó cũng như tính thẩm mỹ đậm chất nghệ thuật của nghệ thuật kiến trúc.
.png)
.png)
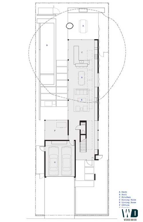
Yếu tố đặc biệt của ngôi nhà là thiết kế nhà liền kề nối liền giữa nhà lô và nhà phân tầng bởi cầu thang gỗ Óc chó sang trọng cùng vân gỗ đặc trưng tạo nên yếu tố sang trọng nhưng lạ mắt cho ngôi nhà. Phần nhà phân tầng của ngôi nhà là khu vực phòng khách, phòng ăn nổi bật với gam màu trầm cùng vân gỗ óc chó sống động. Từ diện tích hẹp, nếu bạn sắp xếp các phối cảnh hợp lý khi thiết kế tủ bếp đa năng, cùng cách để đồ gọn gàng tạo không gian ngăn nắp cho không gian. Bạn có thể thấy từ việc sử dụng đồ gỗ nội thất Óc Chó gam màu tối nhưng không làm căn phòng trở nên thiếu ánh sáng bởi sự kết hợp khéo léo của cửa kính cường lực cao cấp hút nắng một cách dễ dàng. Tiếp đến là khu vực sinh hoạt, phòng ăn uống, phòng bếp được sắp xếp vô cùng hợp lý bởi bản vẽ kĩ thuật dưới đây:
.png)
Các phòng sinh hoat, phòng ăn uống, phòng bếp được sắp xếp theo kế hoạch mở với mức độ bao quanh của kính trượt từ cửa ra vào và cửa sổ trần trên ba mặt. Khu vực này điển hình đại diện cho khu vực mở dưới tán cây thông và cũng là nơi thuận tiện nhất để ngắm khung cảnh bên ngoài đặc biệt là tán cây thông.
.png)
Phòng ngủ, phòng tắm là khu vực được bố trí tầng trên, đây là nơi gia chủ cần sự yên tĩnh, thư thái nhất. Việc sử dụng dày đặc vách ngăn cor-ten để tối ưu hóa toàn bộ ánh sáng tự nhiên ban ngày ở phía bắc và phía đông của mặt tiền đồng thời giảm thiểu tối đa ánh sáng từ phía tây và phía nam. Bởi ánh sáng phía tây luôn nắng gắt còn ánh sáng phía đông luôn dịu nhẹ. Tuy nhiên khi muốn kéo ánh sáng tự nhiên vào trong không gian căn phòng thì việc sử dụng sàn gỗ chất liệu nào cũng khiến gia chủ cũng như kiến trúc sư vô cùng băn khoăn. Nhưng với chất liệu vượt trội cùng tính thẩm mỹ cao cùng với đó là sự đồng bộ với thiết kế của ngôi nhà chính vì thế sàn gỗ óc chó là lựa chọn tối ưu khi đưa vào sử dụng. Sàn gỗ óc chó được lấy từ chất liệu gỗ óc chó có tính năng chống mối, mọt cao, không bị cong vênh do sức nóng cũng như độ ẩm của môi trường cùng độ bền đẹp, tính thẩm mỹ cao khi vân gỗ vô cùng ấn tượng. Bạn có thể tham khảo thêm các không gian khác của căn phòng được sử dụng các sản phẩm chủ đạo từ đồ gỗ óc chó từ các hình ảnh dưới đây:
.png)
.png)